欢迎访问山西省室内装饰协会官网!
设为首页 加入收藏
咨询热线
0351-6566605
别墅设计金奖:金海舵
发布时间:2020-04-26    阅读量:7502


获得2017中国·山西第三届“居然顶层杯”室内设计大赛别墅设计金奖



金海舵

个人工作室


获奖作品赏析


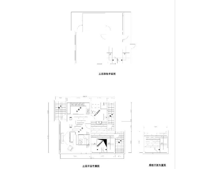
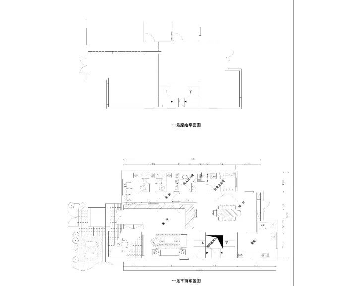
获奖名称:烟台原石滩高尔夫别墅

主创设计师:金海舵

工程面积:300㎡

设计说明:

空间简练、通透敞亮,尽量体现主人的影子:干练,文化,成功人士、稳重、内敛,游走各国偏爱东方意蕴之美……


上一页: 住宅空间设计金奖:赵 磊

下一页: 办公空间设计金奖:宋 凯、田静进

友情链接
联系我们
CONTACT US

山西省室内装饰协会

电话:0351-6566605

手机:13935160811(李先生)

邮箱:510953536@qq.com

地址:太原市万柏林区迎泽西大街332号居然之家河西店装饰材料馆七层协会秘书处


微信公众号
备案号: 晋ICP备20002423号 山西省室内装饰协会版权所有   技术支持:龙采科技(山西)有限公司---百度山西地区营销服务中心山西百度推广山西网站建设